Retour à la liste
VENTE INVESTISSEUR
VENTE INVESTISSEUR
VENTE INVESTISSEUR
VENTE INVESTISSEUR
VENTE INVESTISSEUR
VENTE INVESTISSEUR
VENTE INVESTISSEUR
VENTE INVESTISSEUR
VENTE INVESTISSEUR
VENTE INVESTISSEUR
VENTE INVESTISSEUR
VENTE INVESTISSEUR
VENTE INVESTISSEUR
VENTE INVESTISSEUR
VENTE INVESTISSEUR
VENTE INVESTISSEUR
VENTE INVESTISSEUR
VENTE INVESTISSEUR
VENTE INVESTISSEUR
VENTE INVESTISSEUR
default image
Bruno GARANGER
bruno.garanger@vaneau.fr
Agence Vaneau Bureaux et Commerces
19 , Avenue Raymond Poincaré 75116 Paris
T 0613240355

Vendre

avec Vaneau

VENTE INVESTISSEUR

paris -  Bureaux -  533 m²  -  Ref 866410

3 500 000 €
Nous vous proposons à la vente un ensemble de bureaux occupés par un locataire de premier plan, installé dans les lieux depuis plus de douze ans.
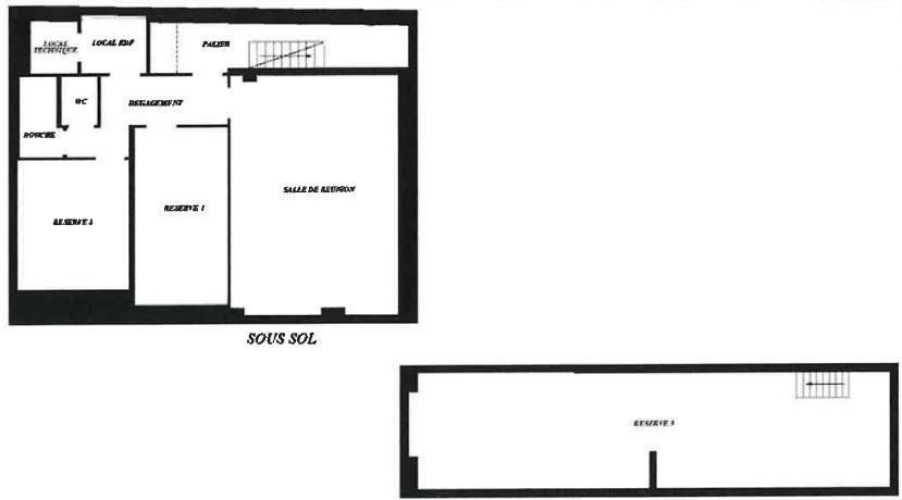
Ces bureaux totalement indépendants offrent un cadre de travail privilégié avec vue sur des espaces arborés. Ils se composent d'espaces répartis entre le rez-de-chaussée et le premier étage, complétés par des locaux de réserves.

Tableau des surfaces

EtageType de bienSurfaceDisponibilité
RDC/SSBureaux 533 m²Nous consulter

Prestations


L'ensemble est en parfait état d'usage, climatisé, et dispose de quatre emplacements de parking privatifs.
Situés à proximité immédiate des stations de métro Montparnasse et Falguière, les locaux bénéficient d'un emplacement stratégique dans une copropriété très bien entretenue.
Le bien est vendu occupé, offrant une rentabilité attractive de 5,31 %, avec bail commercial sécurisé (3/6/9 - 9 ans fermes) avec un loyer de 185.856 EUR/an HC HC
Archives et réserves
Cuisine et sanitaires (5 WC)
4 parking inclus dans le prix de vente
Observations: La mezzanine n'est pas prise en compte dans la surface Carrez

GEORISQUES : Les informations sur les risques auxquels ce bien est exposé sont disponibles sur le site Géorisques : https://www.georisques.gouv.fr

Autour de ce bien

Biens similaires

Bureaux, Locaux d'habitation à vendre de 325m2 Bureaux, Locaux d'habitation à vendre de 325m2 Bureaux, Locaux d'habitation à vendre de 325m2
paris - Bureaux
3 451 500 €
325 m²
Bureaux à louer et à vendre de 330m2 Bureaux à louer et à vendre de 330m2 Bureaux à louer et à vendre de 330m2
paris - Bureaux
3 310 000 €
330 m²
A saisir boutique offrant une belle visibilité bd Magenta et bd Poissonnière. A saisir boutique offrant une belle visibilité bd Magenta et bd Poissonnière. A saisir boutique offrant une belle visibilité bd Magenta et bd Poissonnière.
paris - Activités / Entrepôts
3 300 000 €
314 m²
Locaux d'habitation à vendre de 374m2 Locaux d'habitation à vendre de 374m2 Locaux d'habitation à vendre de 374m2
vincennes - Activités / Entrepôts
3 200 000 €
374 m²

Vous êtes propriétaire-bailleur ?

Optez pour la Gestion Locative

Vaneau international